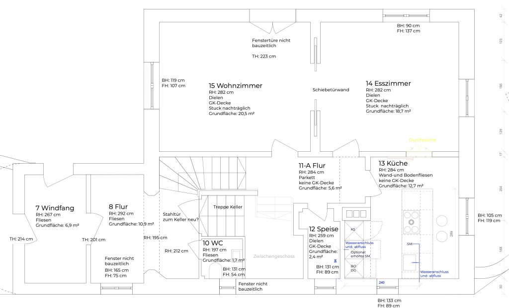
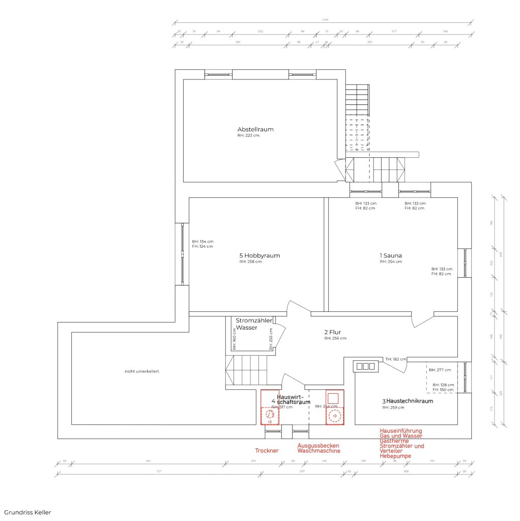
Da es wohl einige Unklarheiten bzgl. der Wasseranschlüsse gibt, hier nochmals die aktuellen Pläne.
Ist im Keller die Installation einfache, wenn die Waschmaschine und Waschbecken auf der anderen Seite sind, dann sollte das gemacht werden.
Ansonsten gelten die aktuellen Pläne:




